+86 15312055281/15312055927
English
English
简体中文
首页
关于我们
企业介绍
公司荣誉
公司剪影
企业文化
产品中心
换热器
新品推荐
容器
金典制冷剂
企业新闻
公司动态
行业资讯
技术支持
服务与支持
质量保证
服务宗旨
下载中心
人力资源
人才战略
招贤纳士
客户案例
营销网络
主要客户
联系我们
气液分离器
首页
气液分离器
产品中心
换热器
水冷冷凝器
水冷蒸发器
干式换热器
满液式换热器
海水换热器
热回收换热器
油冷换热器
新品推荐
螺旋折流板蒸发器
单流程蒸发器
高效油分离器
多功能卧式容器
不锈钢换热器
降膜式蒸发器
电加热油分
集分水器
容器
储液器
气液分离器
油分离器
吸附罐
膨胀罐
虹吸罐
集分水器
低压循环桶
金典制冷剂
R22
R-134a
R-404A
R-407C
R-410A
R-502
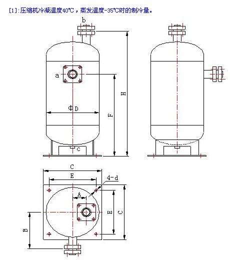
气液分离器 JDVS30
时间:2022-04-14 访问量:13893
上一篇
下一篇